000.YY: Projects

041.VB:  Exhibition
852.WC:  Apt 4
619.SD:  Gallery
852.HH:  Apt 6
852.TKT:  Installation
617.AU:  Townhouse 1
852.SW:  Test Site
u734.AA: Canopy
u003.TKY:  House 0
852.TP:  Townhouse 2
212.NYC: Apt 1
0514.YZ: House
u852.TKT: Pavilion 
852.KLT_v1: Apt 2
852.KLT_v2: Apt 7
u852.QB: Apt 3
u003.TKY: Townhouse 0
u852.HV: Apt 5
u207.MN: School
u087.KG: Market

852.HH: Apt 6
Interior Renovation

Hung Hom (Kowloon), Hong Kong SAR
Built 2025
1,500 SF
-


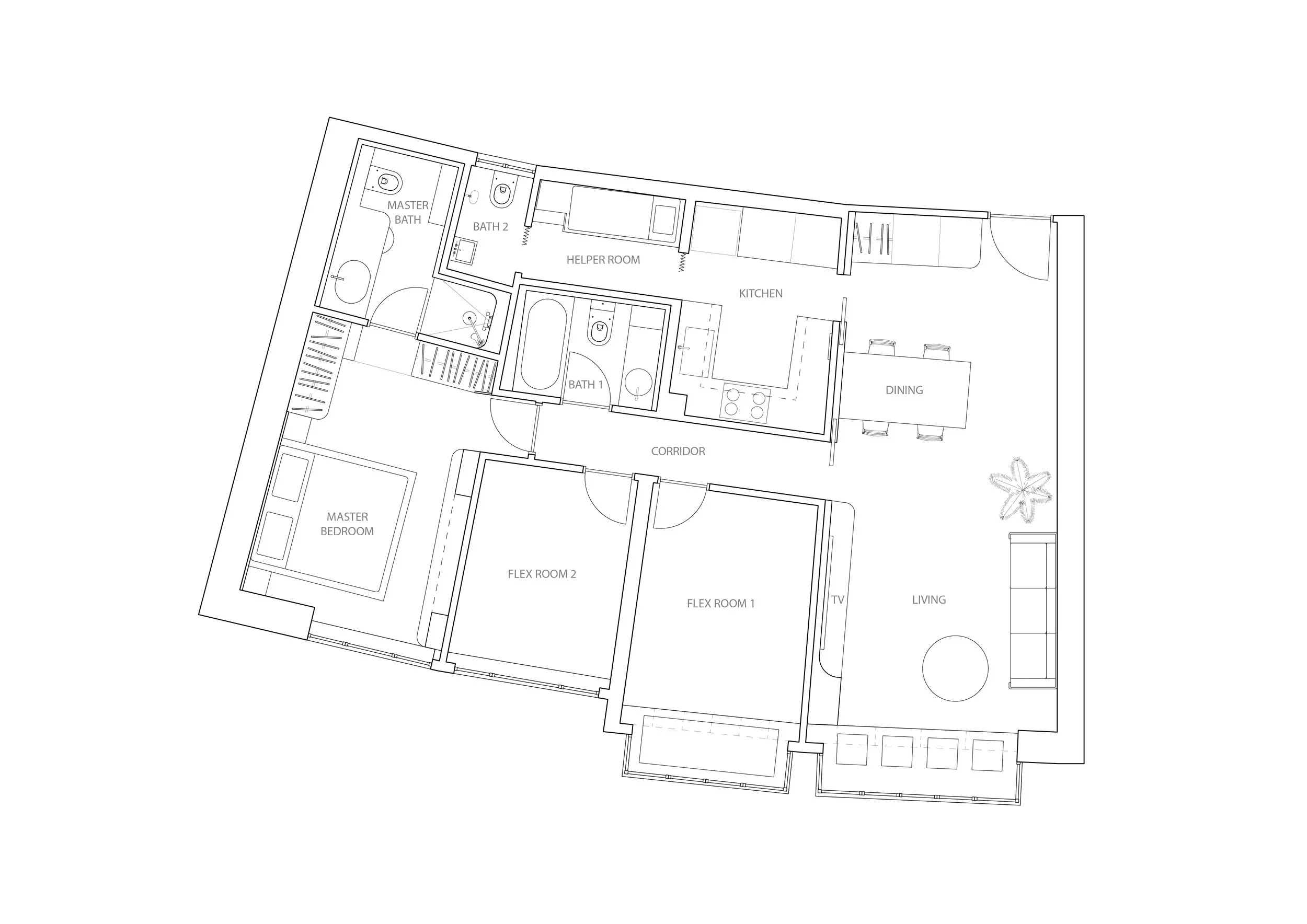
852.HH: Apt 6 is designed for a working couple, their newborn, and two cats, this compact home balances domestic warmth with quiet precision. The brief called for a clean, soft, and low-maintenance interior — one that could support the rhythms of early family life.

A muted palette grounds the space: warm greys, faded olive, and walnut tones are deployed with restraint, forming a calm but tactile backdrop. Corners are gently softened — not only in the curvature of millwork and custom furniture, but also through detail integrations throughout.

Flush-mounted ceiling lights are embedded within a lowered ceiling plane, disappearing into its surface. Paint and plaster blend with light, allowing fixtures to recede — yielding a spatial quietness shaped by subtle coordination between surface, structure, and shadow.

Location
Year
Area
Collaborator
Published